Välkommen till ett boende att längta hem till!
Här får du ett hem med generösa ytor, flexibel planlösning och flera sociala rum – perfekt för både vardagsliv och fest.
-Stort dubbelgarage byggt 2008, om ca 47 kvm med dubbla eldrivna rullportar med fjärrkontroller och vattenburen golvvärme. Separat pannrum med luft/vattenvärmepump, vattenburen golvvärme, bakom garagebyggnaden (ca 15 kvm).
-Generationsbostad/uthyrningsdel ovanpå garaget, inredd 2014, 2 rok, Modernt och fräscht. Möjlig hyresintäkt om ca 10.000 kr/mån.
-Stor plan inhägnad tomt om 1784 m2, med flera grindar.
-Baksidan av tomten är helt insynsskyddad. Här får du en privat oas.
-Angränsar mot allmänning/skog.
-Gångavstånd till badplats.
-Kort gångavstånd till bussen till Slussen som tar ca 17 min.
-Återvändsgata.
-Huvudbyggnaden har energiklass B.
-Två braskaminer.
-Det finns plats för flera bilar invid garaget och på tomten.
-Fiber finns.
Charmig och rymlig 1,5-plansvilla i vinkel – ett hem att trivas i!
Välkommen till denna välplanerade villa om hela 7 rum och kök, med fem möjliga sovrum – perfekt för den stora familjen eller för dig som vill ha gott om plats för både arbete, umgänge och dina hobbyer. Två av sovrummen ligger bekvämt på entréplan, vilket ger flexibilitet och tillgänglighet.
Redan vid entrén möts du av eleganta pardörrar som leder in till en generös hall med utmärkt förvaring. Intill hallen finns ett mångsidigt rum som passar lika bra som sovrum, hemmakontor eller klädkammare – med egen utgång till husets sida.
Husets hjärta är det stilfulla köket från Puustelli, totalrenoverat 2012, med vit inredning, svart klinkergolv och en inbjudande matplats med braskamin. Här finns rostfri kyl och frys i fullhöjd, diskmaskin, inbyggnadsugn och spishäll – allt du behöver för att laga och njuta av goda middagar. Från köket öppnar pardörrar upp mot ett stort trädäck i soligt sydvästläge – perfekt för sommarens grillkvällar. På trädäcket finns en stor pergola 3 x 4 meter. Det finns även två oanvända grå tygväggar till pergolan.
Vardagsrummet är rymligt, med braskamin och ytterligare pardörrar som leder ut till en mysig veranda under tak. På entréplan finns även ett helkaklat badrum med badkar, dubbla handfat och WC, samt en stor tvättstuga med dusch, tvättmaskin, torktumlare och en utgång till husets sida. Intill köket finns ett extra rum som kan användas som sovrum, kontor eller varför inte ett lyxigt skafferi.
Övre plan når du via trappan från kökets matplats. Här möts du av en ljus hall som leder till ett allrum med plats för både soffhörna och TV. Tre sovrum finns här, varav ett har utgång till en egen privat balkong. Övervåningen rymmer även en mindre WC, charmig handfatskommod och ett spegelskåp ovanför.
Insjön i Nacka är ett drömläge för barnfamiljer som söker lugn, trygghet och närhet till naturen. Här bor ni mitt i Velamsunds vackra naturreservat, med skog, sjöar och friluftsliv precis utanför dörren. Området erbjuder badplats, lekvänliga grönområden och mysiga promenadstråk – perfekt för både små och stora äventyrare. Här är det enkelt att kombinera ett aktivt familjeliv med vardagslogistik – med goda bussförbindelser till centrala Nacka och Stockholm, samt närhet till service och handel både i Värmdö Marknad och i Orminge C. Idunskolan årskurs F-9 ligger ca 1,8 km bort (ca 3 min med bil). Förskolan Lär i Nacka ligger ca 4,2 km bort (ca 7 min med bil), samt Lusthusets förskola ligger ca 3,6 km bort (ca 6 min med bil). Insjön är ett område där barnen kan växa upp med naturen som lekplats, där tryggheten är påtaglig och gemenskapen stark. Ett hem här är mer än bara en adress – det är en plats att skapa minnen för livet.
Välkommen på visning!
Rumsbeskrivning
Entréplan – socialt, funktionellt och inbjudande
Välkomnande hall
Rymlig entré med slitstarkt laminatgolv (Pergogolv) och gott om förvaring. Här finns även en luft/luftvärmepump som ger ett behagligt inomhusklimat året om. Praktiskt kodlås på ytterdörren för extra trygghet och smidighet.
Flexibelt sovrum med egen entré
Ljust rum med klinkergolv och spegeldörrar – perfekt som sovrum, hemmakontor eller gästrum. Den egna ingången ger extra frihet och möjligheter.
Stilrent kök med braskamin
Kökets klinkergolv, braskamin och luft/luftvärmepump skapar både stil och komfort. Här finns spishäll, inbyggnadsugn, mikro, diskmaskin, stor diskho i rostfritt och gott om förvaring. Spotlights i taket ger ett modernt intryck. (Observera att köksfläkten behöver ses över enligt säljaren.)
Praktisk tvättstuga med dusch
Kakel och klinker, tvättmaskin, torktumlare och dusch gör detta till en komplett tvättstuga. Bra förvaringslösningar och spotlights i taket. Eluppvärmd handdukstork.
Helkaklat badrum med badkar
Stilrent badrum med kakel och klinker, utrustat med WC, badkar och dubbla handfat – perfekt för både vardag och avkoppling. Eluppvärmd handdukstork.
Ljust vardagsrum med eldstad
Ett inbjudande vardagsrum med parkettgolv, tapetserade väggar, braskamin och luft/luftvärmepump. Spotlights i taket skapar en varm och trivsam atmosfär.
Övre plan – privat och rofyllt
Övre hall
Laminatgolv (Pergogolv) och tapetserade väggar leder vidare till hemmets mer privata delar.
Allrum för hela familjen
Perfekt som TV-rum, lekhörna eller arbetsplats. Laminatgolv (Pergogolv) och vitmålade väggar ger ett ljust och fräscht intryck.
Sovrum med balkong
Ett av sovrummen har utgång till en egen privat balkong – en härlig plats för morgonkaffet eller kvällssolen.
Två ytterligare sovrum
Båda med laminatgolv (Pergogolv) och tapetserade väggar – idealiska som barnrum, gästrum eller kontor.
Charmig gäst-WC
Liten men funktionell WC med handfatskommod och spegelskåp.
Ljust hörnsovrum
Ett rymligt sovrum med fönster i tre väderstreck – perfekt som master bedroom eller kreativt arbetsrum.
Allmänt om uppvärmningen: Luft/vattenvärmepumpen som finns installerad i "pannrummet" bakom garaget försörjer hela huvudbyggnadens entréplan med vattenburen golvvärme förutom entréhallen. Övre plan har vattenburen golvvärme i båda stora sovrummen, lilla WC och lilla hallen, ej i övre hall samt TV-rum/allrum. Luft/Luftvärmepumparna som finns inne i huvudbyggnaden har säljaren främst använt för kyla under varma sommardagar. Luft/vattenvärmepumpen förser även garaget och bakomliggande "pannrum" med vattenburen golvvärme. Lägenheten ovanpå garage värms upp med en luft/luftvärmepump.
Interiör
- Boarea
- 196 m2 (Lantmäteriet) Taxerad bostadsyta är 196 kvm + 15 kvm biarea. Säljaren uppger att dubbelgaraget är ca 47 kvm och att pannrummet/förrådet bakom är ca 15 kvm. Säljaren har ej själv mätt upp bostaden och uppmanar köparen att mäta upp bostaden, garaget, samt bostad ovan garage, om antal kvadrat är av stor betydelse.
- Biarea
- 15 m2
- Rum
- 7
- Antal sovrum
- 5
- Max antal sovrum
- 5
Byggnad
Säljaren upplyser om följande:
-Köksfläkten fungerar dåligt
-Spotlightsen i vardagsrummet har något glapp någonstans. Fungerar ej helt tillfreds.
-I lilla gäststugan på tomten finns ett element, men det finns ingen fungerande el i den stugan.
- Fastighetsbeteckning
- NACKA KIL 2:94
- Typkod
- 220 Småhusenhet, helårsbostad
- Byggnadstyp
- 1,5-plansvilla
- Byggår
- 1975 och 2008-2011
- Om-/tillbyggnadsår
- 2011
- Renoveringar
Säljaren upplyser om följande:
1975 Ursprungliga enplanshuset uppfördes i Kummelnäs
1991 Nuvarande ägare köpte fastigheten som tomt
1992 Huset flyttade till nuvarande plats
2005 Kommunalt vatten och avlopp installerades
2008-2011 Utbyggnad av vardagsrum, badrum, groventré samt övervåningen. Samtliga fönster byttes/installerades då. Hela taket lades om då.
2008 Garaget byggdes
2012 Köket totalrenoveras
2014 Generationsbostad/Uthyrningslägenhet inreddes ovan garage
2014 Ca ny luft/vattenvärmepump
2023 Ny luft/luftvärmepump till lägenheten ovan garage
2024 Senaste sotning och brandskyddskontroll 2024 Nästintill hela villan och garaget målades om med Alcro bestå
2024 Ny ytterdörrDet finns tre nycklar till sidodörren på garaget och till lägenheten ovanpå garaget. En nyckel till förrådet bakom garaget.
- Uppvärmning
- Värmepump luft-vatten / Direktverkande el
- Grund
- Krypgrund
- Stomme
- Trä
- Bjälklag
- Trä
- Fasad
- Stående träpanel
- Tak
- Plåt
- Utvändiga plåtarbeten
- Plåt
- Fönster
- 3-glasfönster med isolerkassett
- Ventilation
- Självdrag
- Vatten
- Kommunalt vatten året om
- Avlopp
- Kommunalt avlopp
Förutom huvudbyggnad, dubbelgarage och mindre gäststuga, finns det även två mindre bodar på tomten.
Tomt
- Tomtyta
- 1784 m2
- Tomtuppgifter enligt
- Lantmäteriet
Kostnader
Driftskostnad är väldigt individuell och kan skilja mycket mellan olika familjer, beroende på förbrukning. Säljaren har haft följande driftskostnad: Uppvärmning + hushållsel 29.567 kr, vatten, avlopp och sophämtning 10.959 kr, hem- och villaförsäkring 9.094 kr, sotning fördelat/år ca 350 kr (utförs vartannat år) = 49.970 kr/år
Den som äger ett färdigbyggt småhus betalar kommunal fastighetsavgift. Du betalar 0,75 procent av taxeringsvärdet upp till den maximala avgiften, som kallas för takbelopp. Inkomståret 2025 (deklarationen 2026) Fastighetsavgiften är 0,75 procent av fastighetens taxeringsvärde för 2025, men aldrig mer än 10 074 kronor (takbeloppet 2025) per bostadsbyggnad. (Källa Skatteverket)
På alla fastighetsköp tillkommer 1,5% av köpeskillingen i lagfartskostnad (stämpelskatt) + 825 kr i administrationsavgift. Stämpelskatt tillkommer även när du tar ut en inteckning (pantbrev) i fastigheten. Stämpelskatten är 2% på inteckningsbeloppet och beräknas på hela tusentals kronor, avrundat nedåt. Expeditionsavgiften är 375 kronor per inteckning. (Källa Lantmäteriet). Det finns 13 st befintliga pantbrev till ett sammanlagt belopp om 4.974.000 kr.
Taxering
- Taxeringsår
- 2024
- Taxeringsvärdesår
- 2003
- Taxeringvärde noggrannhet
- Fastställt
- Taxeringsvärde byggnad
- 4 864 000 kr
- Taxeringsvärde mark
- 4 146 000 kr
- Summa taxeringsvärde
- 9 010 000 kr
- Standardpoäng
- 35
- Typkod
- 220 Småhusenhet, helårsbostad
Energideklaration
- Energistatus
- Energideklaration är utförd
- Energideklaration utförd
- Fredag 16 maj 2025
- Energiklass
- B
- Specifik energianvändning
- 37 kWh/m2
- Energiprestanda, primärenergital
- 67 kWh/m2
- Energikonsumtion
- 13544
Rättigheter och belastningar
- Planer och bestämmelser: Dp 200, Detaljplan (Beslutsdatum: 1999-04-19, Senast ändrad: 2024-01-19)
- Planer och bestämmelser: Dp 362, Ändring av detaljplan (Beslutsdatum: 2005-09-20, Registreringsdatum: 2005-11-22, Senast ändrad: 2024-01-19)
- Rättigheter förmån: Avtalsservitut: Vatten - Se beskrivning
- Rättigheter förmån: Officialservitut: Väg
- Pantbrev
- 13st om totalt 4 974 000 kr
Fakta
- Typ
- Småhus
- Adress
- Rundvägen 12
- Ort
- Saltsjö-Boo
- Boarea
- 196 m2
- Biarea
- 15
- Rum
- 7
- Tomtarea
- 1784 m2
- Byggår
- 1975 och 2008-2011
- Tillträde
- Enligt överenskommelse
Samarbetspartners
Alla bilder

Välkommen till Rundvägen 12!
Stort dubbelgarage med rullportar, golvvärme och uthyrningsdel på övre plan.

Baksidan av huset
Uteplatser både med och utan tak.

Pardörrar leder in till stor hall
Välkomnande hall med gott om förvaring. Intilliggande rum med egen ingång.

Del av entrehall
Bakom draperiet finns gott om förvaring

Intilliggande rum med egen ingång bakom spegeldörrarna.

Stort kök mitt i huset
Gott om plats för mysiga hemmakvällar

Gott om förvaring
Även gott om plats för både mat, bak och prat i köket

Mysig matplats invid braskaminen
Fönster i två väderstreck ger ett fint ljusinsläpp

Trappa upp till övre plan invid matplatsen

Pardörrar från köket
Utanför köket finns ett stort, härligt trädäck, som är ett extra vardagsrum på sommaren. En helt privat oas för dig själv och familjen.

Stort trädäck utanför kök/vardagsrum

Helt insynsskyddad uteplats i syd/västläge

Tvättstugan ligger praktiskt invid köket
Dusch i tvättstugan och badkar i intilliggande badrum. Dörr ut direkt till sidan av hus från tvättstugan. Perfekt groventre. Eluppvärmd handdukstork.

Intilliggande badrum med badkar och dubbla handfat

Det intilliggande badrummet
Eluppvärmd handdukstork ger dig varma handdukar året runt.

Pardörrar från kök in till vardagsrummet

Vardagsrum med pardörrar ut till trädäck under tak

Braskamin i vardagsrummet

Mindre sovrum/kontor invid köket
Kanske inreda det till ett lyxigt skafferi?


Pardörrar ut från vardagsrummet till trädäck under tak

Del av trädäcket under tak

Här kommer du upp till övre hallen på övervåningen

Del av övre hallen

Intilliggande TV-rum / Allrum

Sovrum 1 på övre plan
Ett mysigt, mindre sovrum

Sovrum 1 på övre plan

Sovrum 2 på övre plan
Stort sovrum med plats för dubbelsäng. Utgång till privat balkong.

Mindre WC på övre plan

Sovrum 3 på övre plan
Mycket rymligt sovrum med plats för dubbelsäng

Liten gäststuga

Inuti gäststugan

Överblick över den stora baksidan av tomten
Till höger i bilden syns trappan upp till generationsbostaden / uthyrningsdelen ovanpå det stora dubbelgaraget.

Generationsbostad / Uthyrningslägenhet ovanpå garaget
Luft/luftvärmepump finns installerad. Stor altan utanför bostaden i syd/västläge.

Generationsbostad / Uthyrningslägenhet ovanpå garaget
Matplats, kyl/frys, förvaring, spis, diskho. Även plats för liten soffhörna.

Generationsbostad / Uthyrningslägenhet ovanpå garaget
Sovrumsdel med fint ljusinsläpp från två fönster.

Generationsbostad / Uthyrningslägenhet ovanpå garaget
Tvättmaskin, dusch och WC. Takfönster för bra ljusinsläpp.

Översikt över tomtens stora baksida
Baksidan av tomten ligger helt insynsskyddad. Här har du din egen privata oas.

Tomtkarta Rundvägen 12
Obs! Alla små byggnader som syns på tomtkartan finns inte kvar på fastigheten.
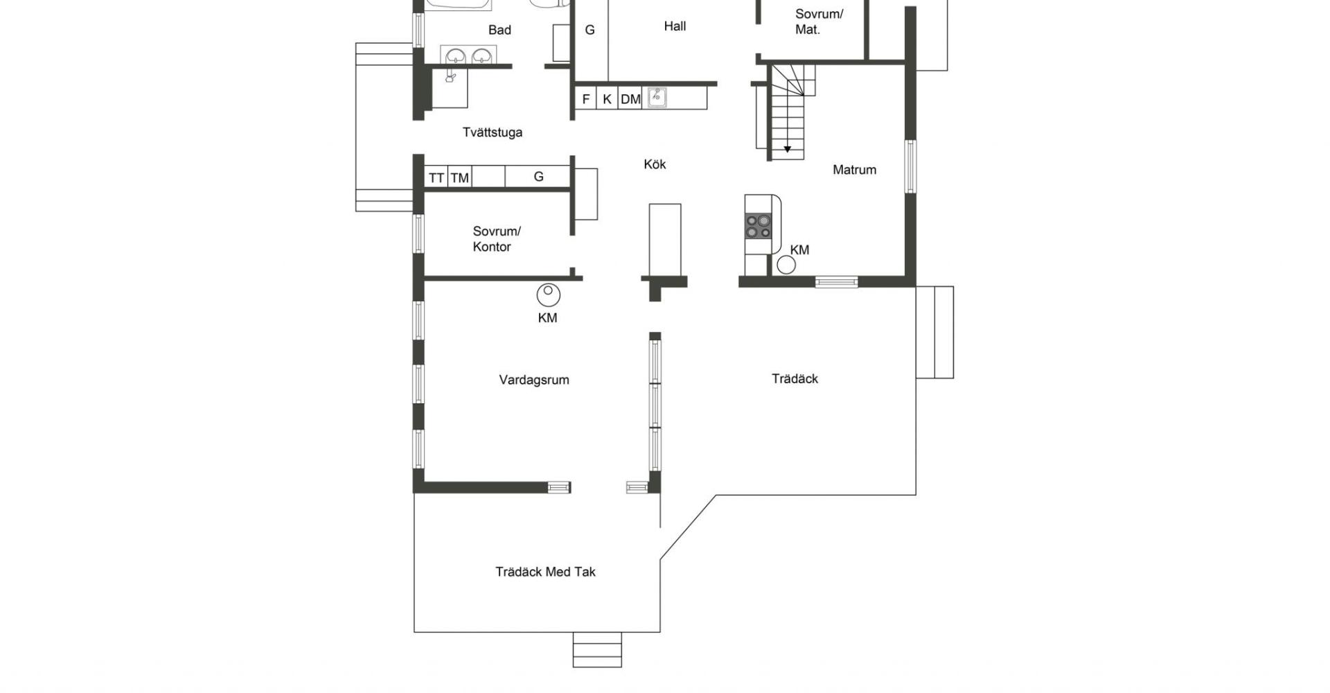
Planlösning

Planskiss entreplan
Obs! Viss avvikelse kan förekomma

Planskiss övre plan
Obs! Viss avvikelse kan förekomma










































